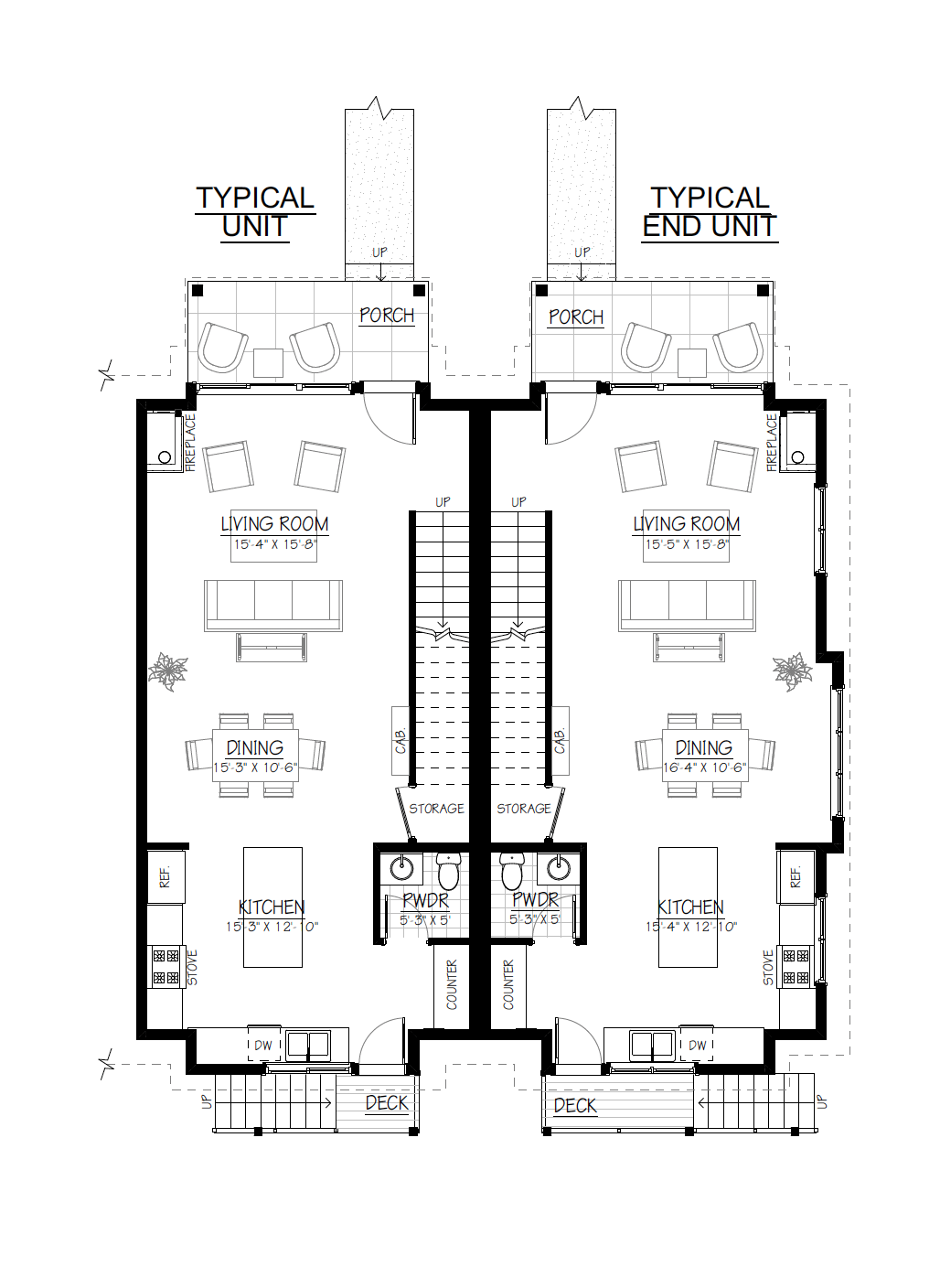
Suncadia Social Bungalow
Bldg 5 Main Floor Typical 774 SF, End Unit 789 SF
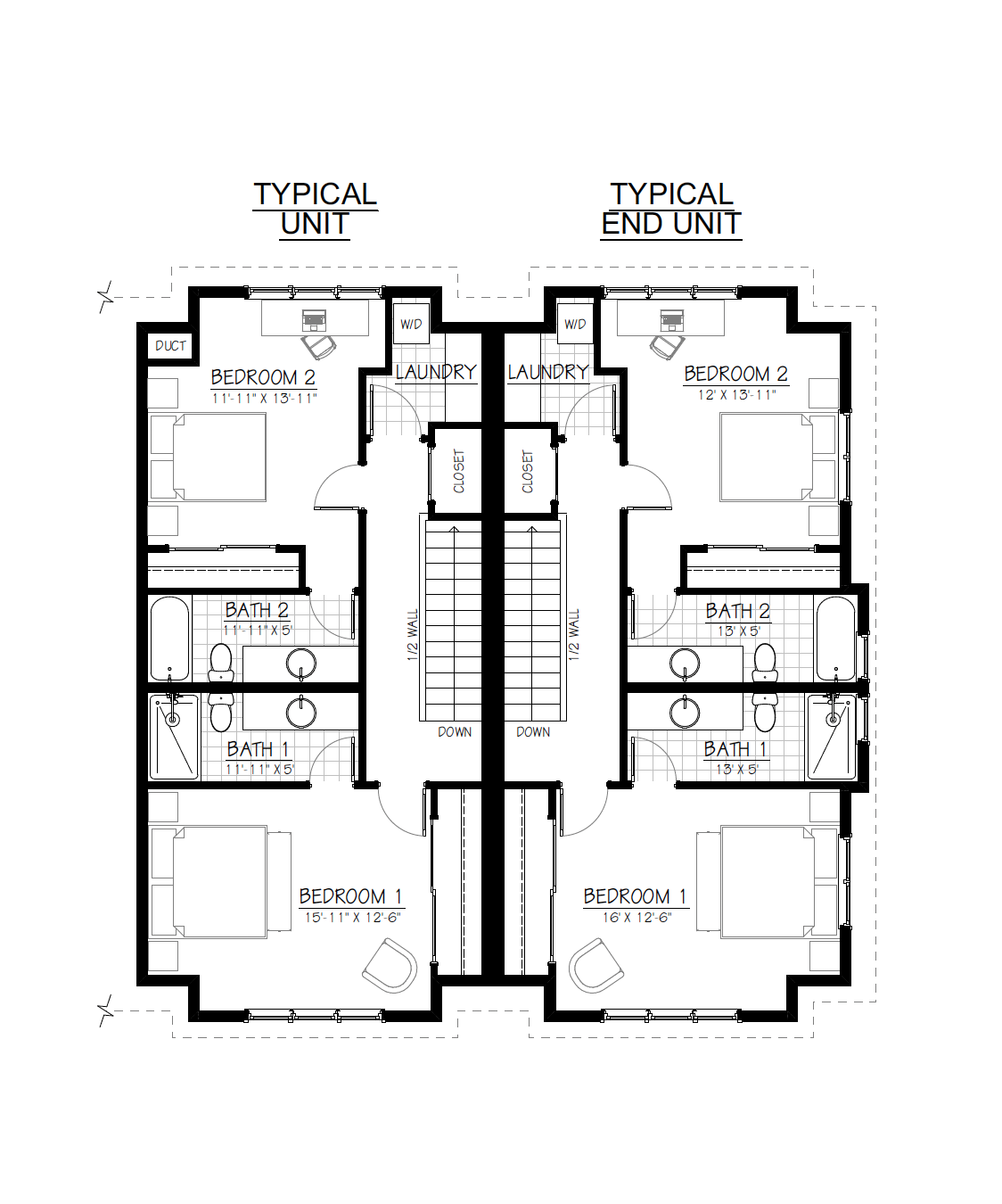
Bldg 5 Upper Floor Typical 747 SF End Unit 762 SF
Project Number: 23.39
- Main Floor
- Upper Floor
Suncadia Social Bungalow
Bldg 5 Main Floor Typical 774 SF, End Unit 789 SF
Bldg 5 Upper Floor Typical 747 SF End Unit 762 SF
Project Number: 23.39